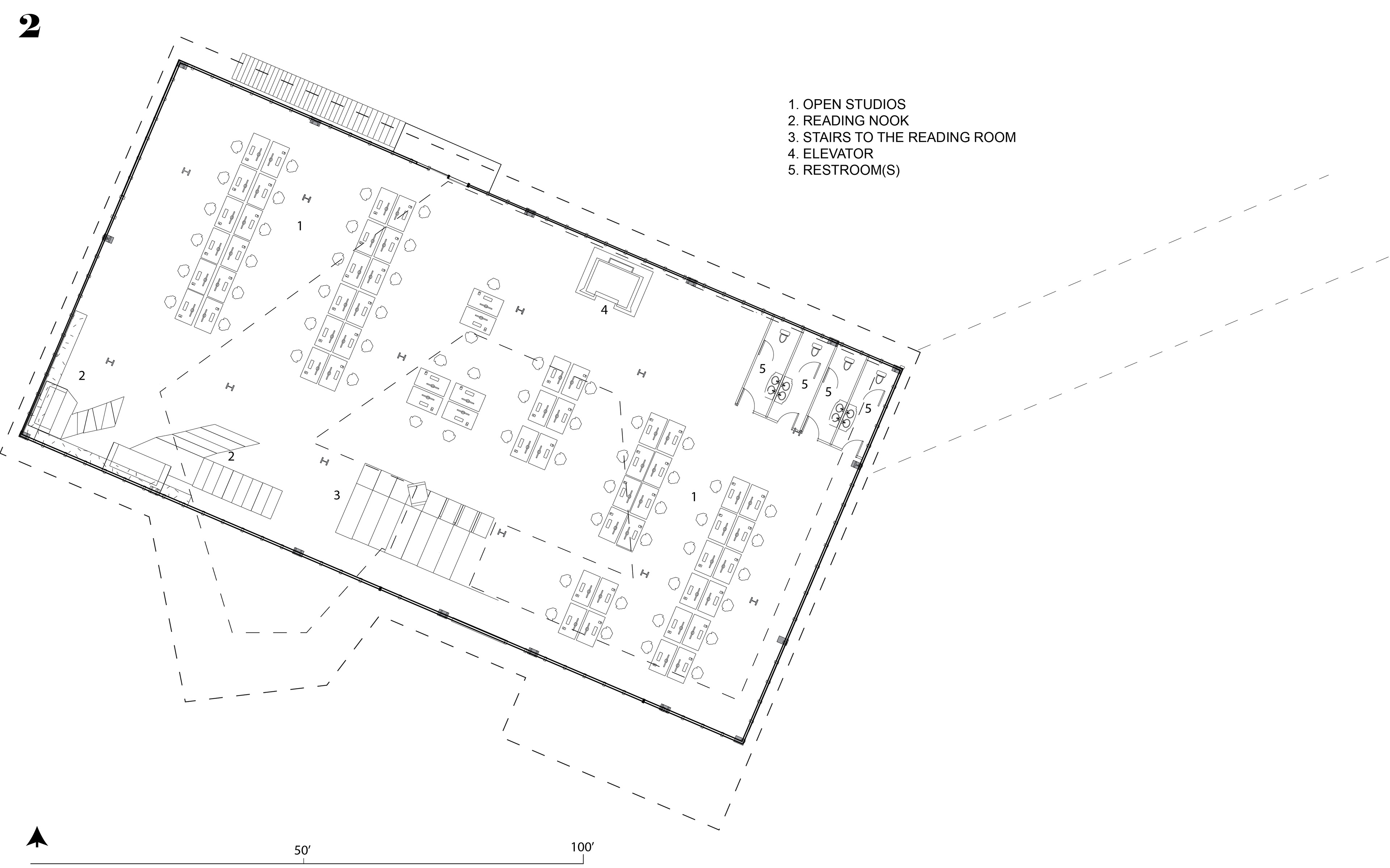
The project for the Hillier College addresses a significant challenge within the school's infrastructure. Given its focus on intensive major programs dedicated to production, the existing facilities lack spaces that cater to the essential need for personal rejuvenation. In response to this gap, my project introduces a novel approach by incorporating an auxiliary space designed to disrupt the monotony of productive environments. This transformative element takes the form of a reading room, strategically integrated to extend beyond traditional boundaries. The reading room not only provides a dedicated space for relaxation and rejuvenation but also serves as a conceptual break from the rigors of studio spaces and faculty offices. By intertwining circulation pathways with the expansion of the reading room, the design creates a harmonious blend of functionality and aesthetics, fostering an environment that not only supports academic endeavors but also prioritizes the well-being and personal contemplation of the Hillier College community.

You may also like

Back to Top